Fairways 121

Elegant interiors and exteriors for modern living

Brief

At Dzen Interior Architects, we transformed Fairways 121 with comprehensive interior and exterior designs, including the living room, powder room, pantry, and dining room. Our design approach combines contemporary elegance with functional elements, creating a seamless and inviting living environment.

Location:

Dubai Hills Estate, Dubai, UAE

Details:

Architecture

Date:

20/07/2023

Team:

Dzen, Hamza, Jhon Doe

Share:

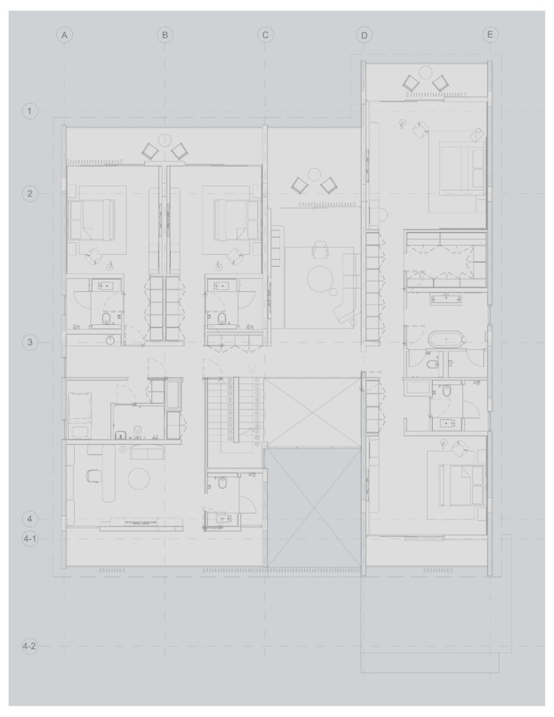
Layout

The layout of Fairways 121 is meticulously planned to enhance both interior and exterior spaces. The living room features an open layout with stylish seating and modern décor, creating a welcoming and sophisticated atmosphere.
The powder room is designed with luxurious finishes and efficient use of space. The pantry is optimized for storage and accessibility, seamlessly blending into the kitchen area. The dining room is an elegant space that facilitates both intimate dinners and larger gatherings. The exterior design complements the interior with cohesive aesthetics, featuring landscaped gardens, inviting entryways, and outdoor living areas that extend the home’s living space.

Challenge

Maximizing space utilization while maintaining a comfortable and stylish environment. Ensuring a cohesive design theme throughout both interior and exterior spaces. Balancing natural and artificial lighting to enhance the ambiance. Integrating high-quality materials and finishes that offer durability and aesthetic appeal.
Addressing the need for ample storage solutions without compromising design. Coordinating the installation of fixtures and fittings while managing logistical constraints. Ensuring privacy and acoustics in different areas while maintaining an open and inviting feel. Overcoming structural limitations to achieve the desired design vision for both interior and exterior spaces.